Lovegokarts
New member
- Messages
- 12
- Reaction score
- 6
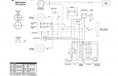
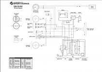
I need a hammerhead gy6 150cc wiring diagram. Any help would be greatly appreciate.
Anything in particular you need help with?I need a hammerhead gy6 150cc wiring diagram. Any help would be greatly appreciate.
How did you determine it has an AC CDI?I have a ac cdi buggy, and so I got the old wiring in the front of the buggy and new wiring from Amazon for the back of the buggy and the wiring don’t match in color. So I need a wiring diagram from the front of the buggy to the rear of the buggy. I watched JD at custom buggy on YouTube. And he said if you have a ac buggy, the key switch is all negative wiring. I been looking everywhere on the internet for a negative key switch wiring diagram
Tell us what this label says.How did you determine it has an AC CDI?
I really really wanna know cause I think I know...Tell us what this label says.
I have a ac cdi buggy, and so I got the old wiring in the front of the buggy and new wiring from Amazon for the back of the buggy and the wiring don’t match in color. So I need a wiring diagram from the front of the buggy to the rear of the buggy. I watched JD at custom buggy on YouTube. And he said if you have a ac buggy, the key switch is all negative wiring. I been looking everywhere on the internet for a negative key switch wiring diagram
I'm leaning toward a Hammerhead machine going by what looks to be an H on that top section. Of course that could have nothing to do with it.I really really wanna know cause I think I know...
I even have the same VIN plate...
How many wires are coming out of the top of the engine near the flywheel cover? These are the stator wires. If you have 5, it's a DC CDI setup. If you have 6, it's an AC CDI setup.I have a ac cdi buggy, and so I got the old wiring in the front of the buggy and new wiring from Amazon for the back of the buggy and the wiring don’t match in color. So I need a wiring diagram from the front of the buggy to the rear of the buggy. I watched JD at custom buggy on YouTube. And he said if you have a ac buggy, the key switch is all negative wiring. I been looking everywhere on the internet for a negative key switch wiring diagram